Ruhiges REH in familienfreundlicher Lage


Die Immobilie befindet sich in einem der naturnahen und familienfreundlichsten Stadtteile im Norden Münchens. Der Stadtteil vereint dörfliche Ruhe, ein vielseitiges Freizeitangebot durch mehrere Seen (u. a. Feldmochinger See, Fasaneriesee, Lerchenauer See, Regattaparksee) und ausgedehnte Grünflächen mit einer hervorragenden Anbindung an Stadt und Umland. Die S- und U-Bahn (U2, S1) erreichen Sie bequem zu Fuß – in etwa 20 Minuten gelangen Sie so ins Stadtzentrum oder zum Flughafen. Die nahegelegenen Autobahnen A 92 und A 99 bieten zudem schnelle Erreichbarkeit über das Auto. Im direkten Umfeld finden Sie zahlreiche Einkaufsmöglichkeiten, Bäckereien, Apotheken, Kindergärten, Schulen und Arztpraxen – was den Quartierscharakter unterstreicht. Einkaufserlebnisse im OEZ oder Mira-Center sind in wenigen Minuten erreichbar. Der wöchentliche Wochenmarkt am Walter-Sedlmayr-Platz sorgt für ein besonderes nachbarschaftliches Flair. Ruhige Wohnstraßen, viele Familien und ein grünes Umfeld schaffen ein angenehmes Lebensumfeld – perfekt für alle, die ländliche Atmosphäre mit urbanem Komfort kombinieren möchten.

Die Häuser entstehen in solider Massivbauweise nach neuesten energetischen Standards und verbinden Komfort mit Langlebigkeit. Große Fenster mit Dreifachverglasung, elektrische Rollläden und eine effiziente Luft-/Wasser-Wärmepumpe mit Fußbodenheizung in allen Räumen schaffen eine angenehme Wohnatmosphäre. Hochwertige Bäder mit Ausstattung von Villeroy und Boch, Hansgrohe und Kaldewei, edler Parkettboden in den Wohn- und Schlafräumen sowie geschmackvolle Fliesen in Bädern und Hobbyräumen unterstreichen den gehobenen Anspruch. Eine elegante Treppe, stilvolle Innentüren, eine einbruchhemmende Haustür und eine durchdachte Elektroinstallation mit Netzwerk- und TV-Anschlüssen in allen Wohnräumen runden das Gesamtbild ab. Im Außenbereich laden sonnige Terrassen, ein Carport mit Elektroanschluss und eine ansprechend gestaltete Zufahrt zum Wohlfühlen ein.

Ihr Ansprechpartner:

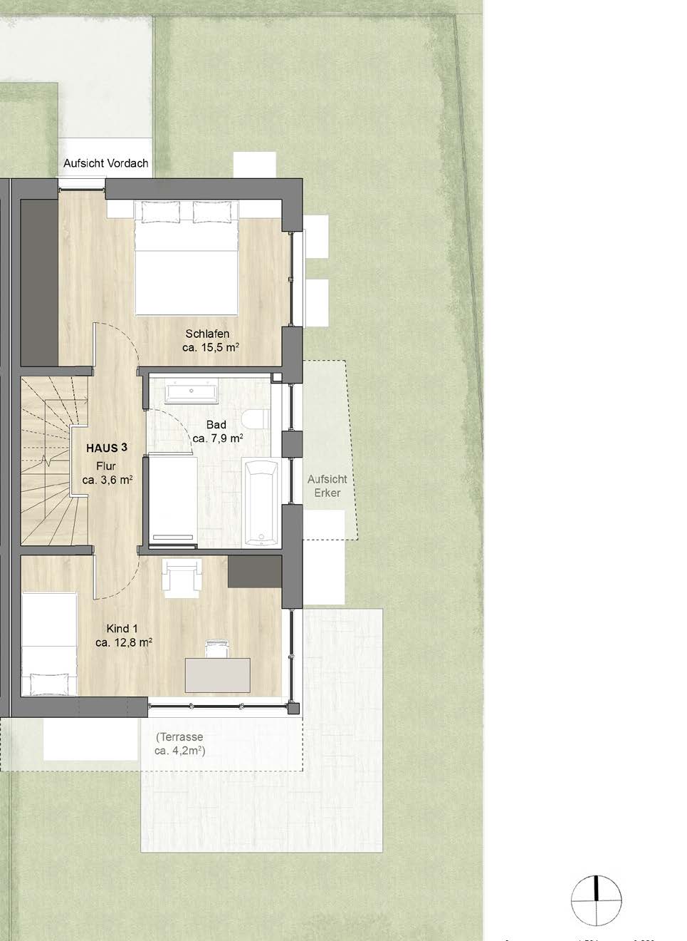
Grundrisse:

hier herunterladen: